M’GLADBACH – HARDTERBROICH RENDITESTARKES 3-PARTEIENHAUS MIT GARTEN & TERRASSEN!

Haus

(Mehrfamilienhaus )

41065

Mönchengladbach

389000,-

256 m2
292 m2
11

Fakten

Typ
Haus
(Mehrfamilienhaus)
Baujahr
1948
Etagen
Grundstück
292 m2
Wohnfläche
256 m2
Nutzfläche
Zimmer
11
Bäder
Stellplätze
Preis

EUR 389000

Käuferprovision
3,57% Käuferprovision inkl. MwSt. verdient und fällig bei Abschluss des notariellen Kaufvertrages. Wir haben mit dem Verkäufer einen provisionspflichtigen Maklervertrag in gleicher Höhe abgeschlossen (Maklervertrag nach § 656 c BGB).

M’GLADBACH – HARDTERBROICH RENDITESTARKES 3-PARTEIENHAUS MIT GARTEN & TERRASSEN!

41065 Mönchengladbach, Mehrfamilienhaus zum Kauf

Kontaktdaten

Luca Walenta,

Objektdaten

  • Objekt-ID
    MFH011020251
  • Objekttypen
    Haus, Mehrfamilienhaus
  • Adresse
    41065 Mönchengladbach
    (Hardterbroich-Pesch)
  • Etagen im Haus
    4
  • Wohnfläche ca.
    256 m²
  • Grund­stück ca.
    292 m²
  • Zimmer
    11
  • Schlafzimmer
    7
  • Badezimmer
    5
  • Heizungsart
    Zentralheizung
  • Wesentlicher Energieträger
    Gas
  • Baujahr
    1948
  • Zustand
    gepflegt
  • Status
    vermietet
  • Verfügbar ab
    ab sofort!
  • Käufer­provision
    3,57 % Käufercourtage inkl. 19 % Mehrwertsteuer
    3,57 % Käuferprovision inkl. MwSt. verdient und fällig bei Abschluss des notariellen Kaufvertrages. Wir haben mit dem Verkäufer einen provisionspflichtigen Maklervertrag in gleicher Höhe abgeschlossen (Maklervertrag nach § 656 c BGB).
  • Kaufpreis
    389.000 EUR

Ausstattung / Merkmale

  • ✓ Keller

Energieausweis

  • Energieausweistyp
    Bedarfs­ausweis
  • Ausstellungsdatum
    nach dem 1.5.2014
  • Baujahr lt. Energieausweis
    1948
  • Primärenergieträger
    Gas
  • Endenergie­bedarf
    139,73 kWh/(m²·a)
  • Energie­effizienz­klasse
    E
0 25 50 75 100 125 150 175 200 225 250+ H G F E D C B A A+ H G F E D C B A A+ Endenergiebedarf 139,70 kWh/(m²·a)

Objekt­beschreibung

Beschreibung

“ M’GLADBACH – HARDTERBROICH – RENDITESTARKES 3-PARTEIENHAUS MIT GARTEN & TERRASSEN! „

Zum Verkauf steht ein attraktives und vollvermietetes 3-Parteienhaus in zentraler Lage von Mönchengladbach-Hardterbroich. Das im beliebten Stadtteil gelegene Mehrfamilienhaus überzeugt durch seine solide Bausubstanz, eine durchdachte Raumaufteilung sowie stabile Mieteinnahmen. Mit einer Gesamtwohnfläche von ca. 256 m² auf einem Grundstück von rund 292 m² bietet die Immobilie ein hervorragendes Investment mit langfristigem Wertsteigerungspotenzial.

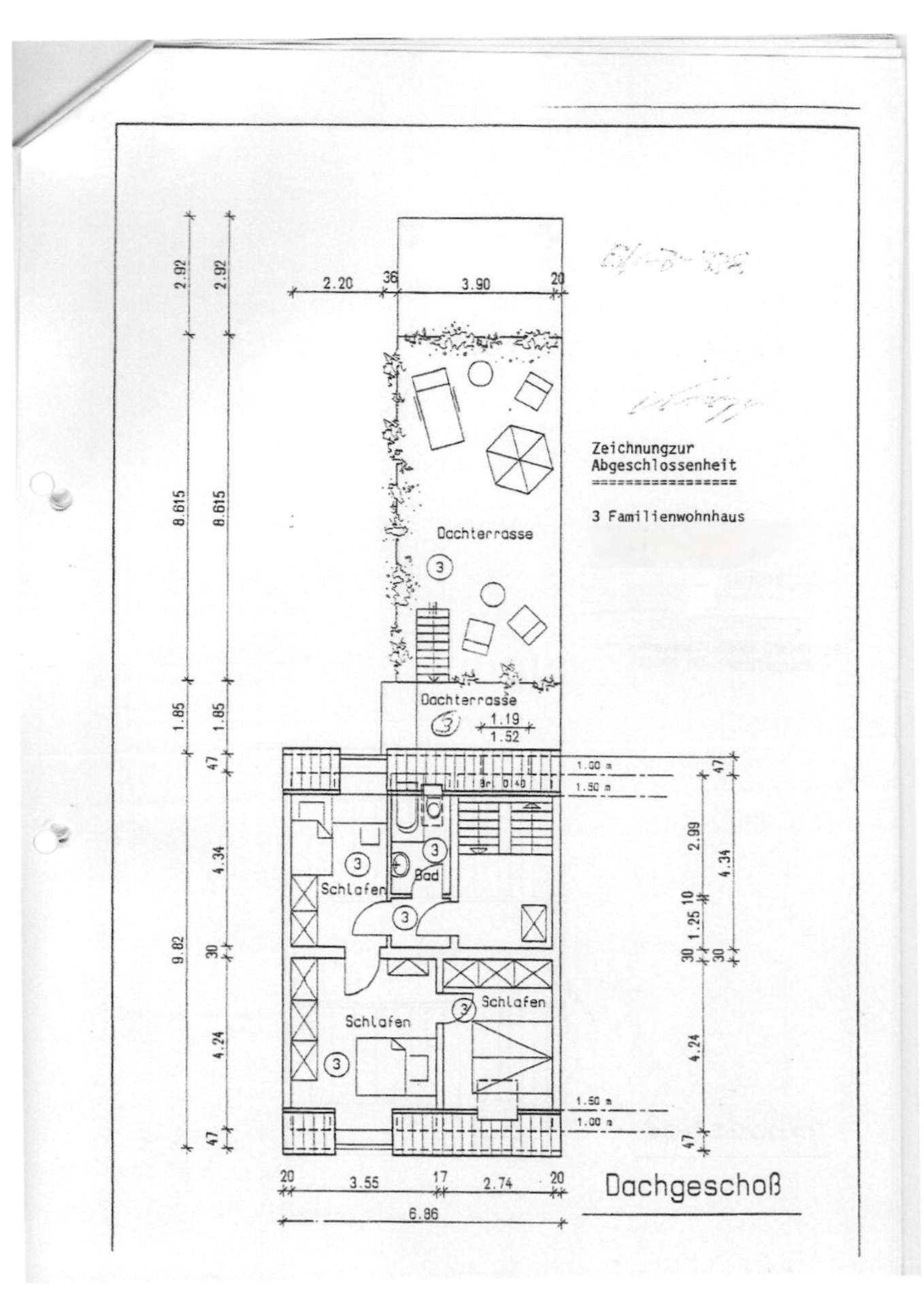
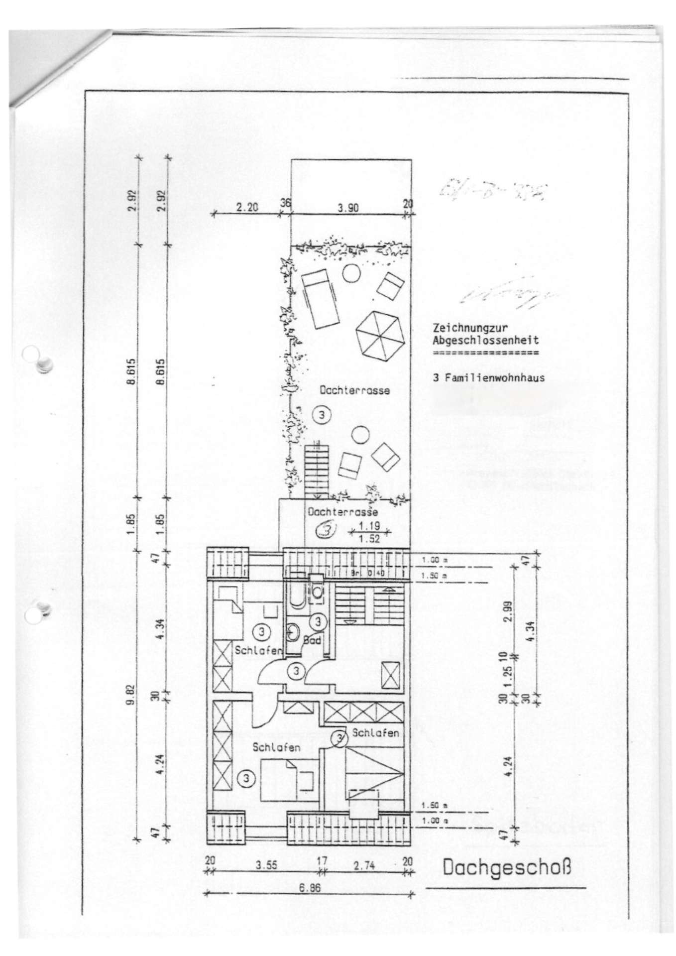
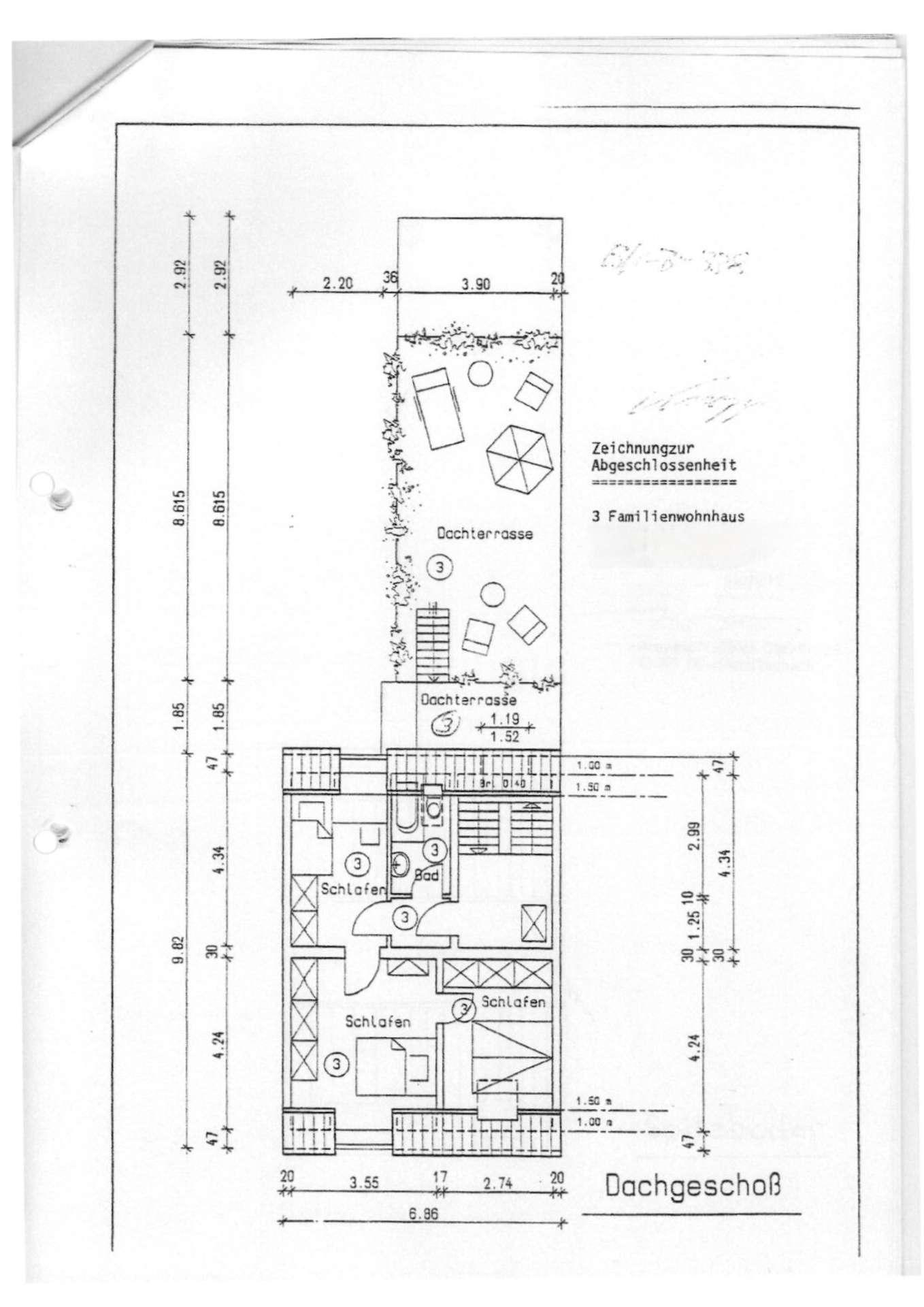
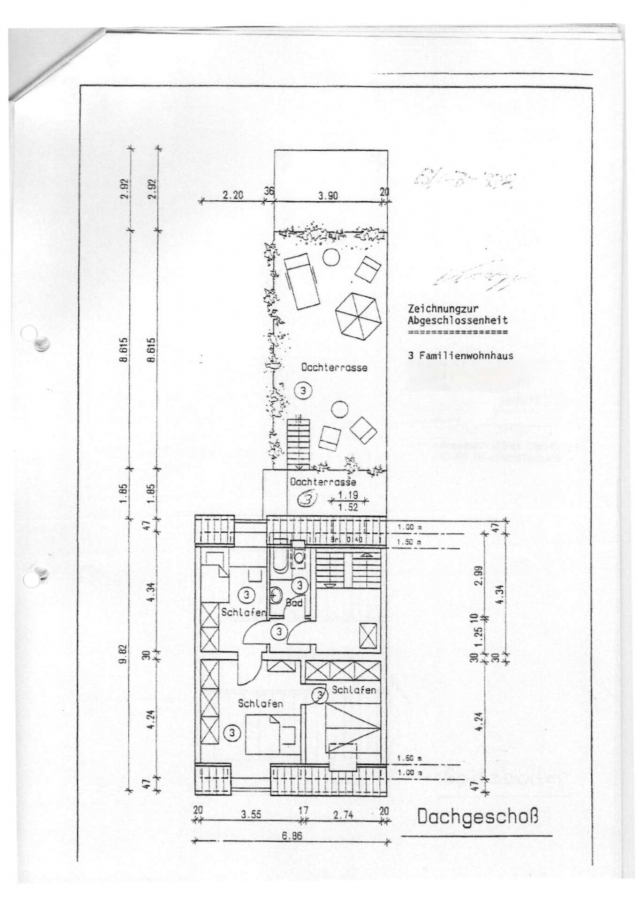
Das Objekt umfasst drei Wohneinheiten, die allesamt vermietet sind. Die Erdgeschosswohnung verfügt über eine Wohnfläche von etwa 84 m² und bietet direkten Zugang zum Garten, der den Bewohnern als idyllischer Rückzugsort im Freien dient. Im ersten Obergeschoss befindet sich eine etwa 74 m² große Wohnung mit klassischem Schnitt und lichtdurchfluteten Räumen. Die dritte Einheit ist eine großzügige Maisonettewohnung im zweiten Obergeschoss und Dachgeschoss mit einer Wohnfläche von ca. 98 m² sowie einer schönen Dachterrasse, die zusätzlichen Wohnkomfort und Freiraum bietet.

Die aktuelle Jahresnettokaltmiete beläuft sich auf rund 28.800 €, was das Objekt zu einer soliden Kapitalanlage mit attraktiver Rendite macht. Alle Wohnungen sind gepflegt und verfügen über helle Wohnbereiche, gut geschnittene Grundrisse und zeitgemäße Ausstattungen.

Die Lage in Hardterbroich zählt zu den gefragten Wohngegenden Mönchengladbachs. Einkaufsmöglichkeiten, Schulen, Kindergärten, Ärzte und Haltestellen des öffentlichen Nahverkehrs befinden sich in unmittelbarer Umgebung. Die Innenstädte von Rheydt und Mönchengladbach sind in wenigen Minuten erreichbar. Auch die nahegelegenen Autobahnen A44, A52 und A61 gewährleisten eine schnelle Anbindung an die umliegenden Städte wie Düsseldorf, Köln und Aachen.

Insgesamt bietet dieses 3-Parteienhaus eine hervorragende Kombination aus solider Mieteinnahme, attraktiver Lage und weiterem Entwicklungspotenzial

Ausstattung

Das hier angebotene Mehrfamilienhaus in Mönchengladbach-Hardterbroich wurde ursprünglich ca. 1948 erstellt und ist unterkellert. Die Substanz des Objekts ist in einem gepflegten Zustand.

Die hier angebotene Immobilie hat viele Ausstattungsdetails, hier ein kleiner Auszug:

  • Gas-Zentralheizung von 2019
  • Dacheindeckung von 2016
  • Kunststofffenster mit Doppel-Isolierverglasung
  • 2 Küchen (1.OG und 2.OG)
  • gefragte Wohnungsgrößen
  • Vollvermietung
  • Balkon
  • Terrassen
  • Garten
  • separate Kellerräume
  • uvm…

Sonstiges

HINWEIS:
Dieses Exposé ist eine Vorabinformation zu unserem Angebot. Alle Abmessungen, Ausstattungsmerkmale und Detailangaben sind nach Auskünften des Eigentümers wiedergegeben worden. Wir ermöglichen eine jederzeitige Nachprüfung durch den / die Käufer/ Interessenten, da wir hierfür keine Haftung übernehmen können.

PROVISIONSHINWEIS:
3,57 % Käuferprovision inkl. MwSt. verdient und fällig bei Abschluss des notariellen Kaufvertrages. Wir haben mit dem Verkäufer einen provisionspflichtigen Maklervertrag in gleicher Höhe abgeschlossen (Maklervertrag nach § 656 c BGB).

FINANZIERUNG:
Sie haben noch keine Finanzierung oder wünschen ein konkretes Angebot? Gerne unterbreiten wir Ihnen in Kooperation mit unseren qualifizierten Partnern ein speziell auf Ihre Bedürfnisse zugeschnittenes Finanzierungsangebot. Es besteht durchaus die Möglichkeit auch ohne Eigenkapitaleinsatz Ihren Traum von den eigenen vier Wänden zu verwirklichen.

Lage

Das hier angebotene Objekt befindet sich in Hardterbroich, einem sehr beliebten Ortsteil von Mönchengladbach.

Im direkten Umfeld ist das schulische Angebot vielfältig. Zudem befinden sich mehrere Kindergärten / Kitas in unmittelbarer Nähe zu Ihrem neuen Zuhause. Supermärkte, Bäckereien, Discounter, Restaurants, Tankstellen und viele weitere Geschäfte, die zum täglichen Bedarf gehören, befinden sich ebenfalls in der direkten Umgebung.

Ein großes Spektrum von Fachärzten, sowie Apotheken befinden sich in unmittelbarer Nähe. Das Neuwerker Krankenhaus „Maria von den Aposteln“, sowie das Elisabeth Krankenhaus Mönchengladbach sind knappe 6 Kilometer von Ihrer Immobilie entfernt.

Südlich & nahe des Schloss Rheydts gelegen, verlaufen entlang der Niers jede Menge Rad- und Spazierwege, Felder und Wiesen. 1,1 Kilometer entfernt, befindet sich der Volksgarten. Der Volksgarten bietet neben einem schönen Rundgang um den Weiher auch einen großen Spielplatz.

Kurze Wege zu den Autobahnen A46, A44, A61 und A52 und die Erreichbarkeit der Flughäfen Mönchengladbach, Düsseldorf und Köln in einem Umkreis von 20 bis 70 Kilometern bieten beste Verbindungen in alle Welt.

Sie sehen gerade einen Platzhalterinhalt von Google Maps – WP-ImmoMakler. Um auf den eigentlichen Inhalt zuzugreifen, klicken Sie auf die Schaltfläche unten. Bitte beachten Sie, dass dabei Daten an Drittanbieter weitergegeben werden.

Mehr Informationen

Die dargestellte Position der Immobilie ist nur eine ungefähre Angabe.

Direktanfrage

* Pflichtangaben
 SSL-verschlüsselt
Darstellung der Immobilien mit WP-ImmoMakler und Daten aus

Weitere Bilder